Pausenhof Dreilinden

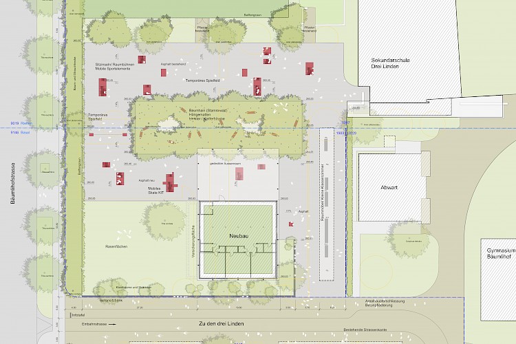
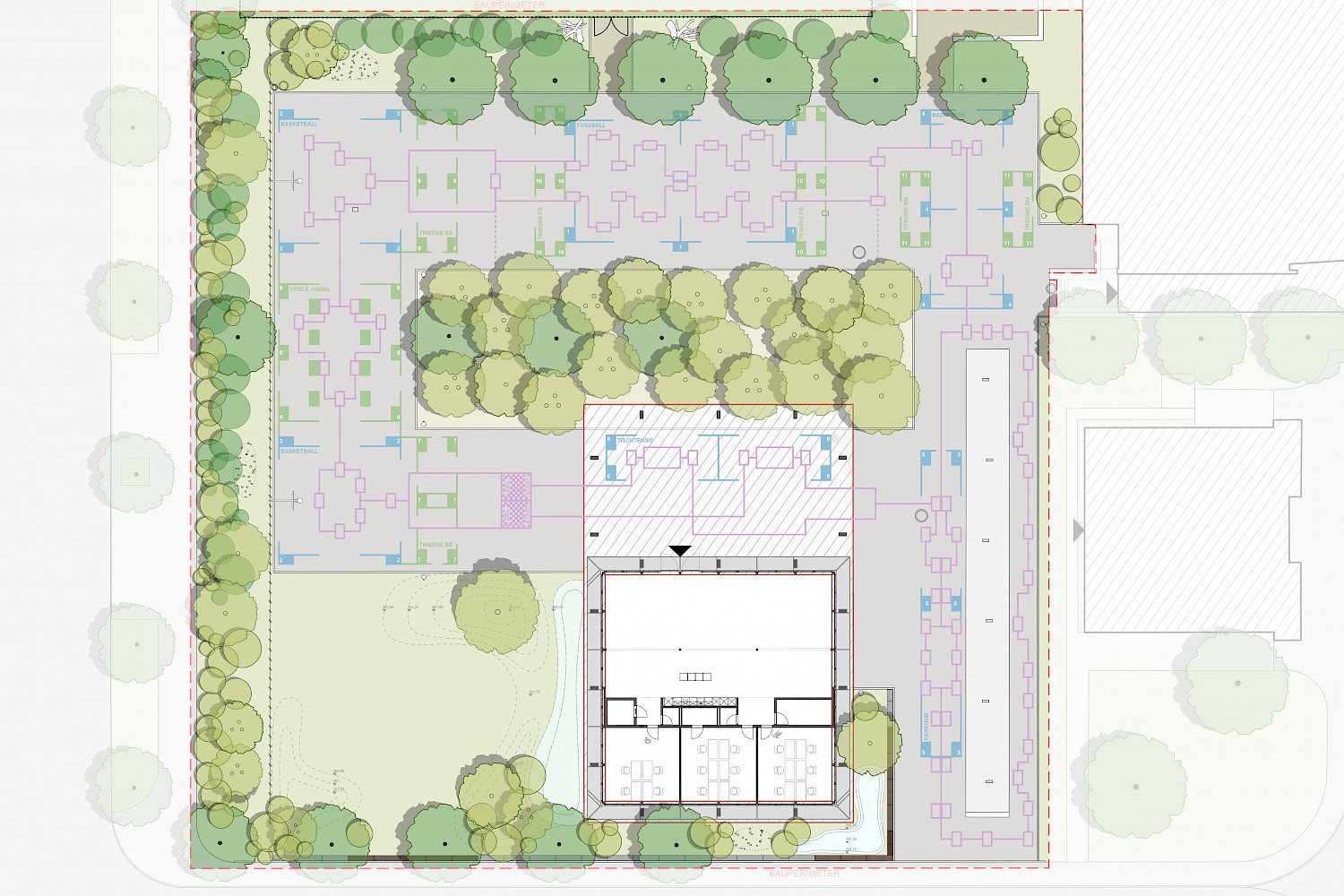
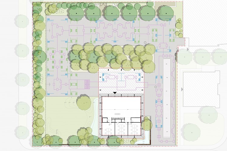
Der Bildungscampus Bäumlihof integriert mehrere Schulsysteme und  öffentliche Sporteinrichtungen im Stadtteil Hirzbrunnen in Basel. Das Hochbauamt ist an uns herangetreten, um das Areal zu analysieren und einen temporären Neubau in die bestehende Situation zu integrieren. Der so entstandene Pausenplatz erfüllt sowohl die Nutzeransprüche der Schüler und Lehrpersonen, als auch die ökologischen Ansprüche der Stadt Basel. Charakteristisches Element des Platzes ist die Signaletik im Zusammenhang mit der eigens für dieses Projekt entwickelten Möblierung. Im Zusammenspiel der Elemente entsteht ein performativer Pausenhof, der von den Nutzern immer wieder neu auf dessen Bedürfnisse ausgerichtet werden kann.

TitelPausenhof Dreilinden

ArtDirektauftrag

Planung/Ausführung2018-2019

Leistungsphasen31-51

AuftraggeberHochbauamt Stadt Basel

Zurück

Indem Sie diesen Hinweis schliessen oder mit dem Besuch der Seite fortfahren, akzeptieren Sie die Verwendung von Cookies.Datenschutz